GW- Optymalny G2 to wersja naszego flagowego projektu powiększona o duży garaż dwustanowiskowy. Garaż dwustanowiskowy został zaprojektowany bez kompromisów, aby bez problemu pomieścić dwa duże auta.
GW Optymalny to projekt najczęściej wybierany przez klientów. Dom parterowy jednorodzinny o przemyślanej bryle, którą łatwo można dostosować – zarówno do stylu klasycznego jak i nowoczesnego – co obrazują nasze wizualizacje. W wersji z garażem dwustanowiskowym otrzymujesz garaż, który spokojnie pomieści dwa duże samochody lub jeden samochód + miejsce magazynowe.
Projekt domu został wykonany w oparciu o naszą wieloletnią praktykę oraz w ścisłej współpracy z klientami GW INVEST. Przygotowaliśmy dom powtarzalny, który spełnia najczęstsze oczekiwania klientów. Przy tym jest tani w budowie, przy zachowaniu wysokiej jakości budowy oraz super szybkiego wykonania. Zaprojektowaliśmy dom w cenie mieszkania.
Niski koszt ogrzewania
Zwarta bryła, przemyślana konstrukcja, przeliczone grubości izolacji oraz lokalizacja okien powodują że dom jest bardzo ekonomiczny w utrzymaniu, a rachunki za energię zaskoczą pozytywnie każdego z naszych klientów! Jako, że niskie opłaty za rachunki są dla nas bardzo ważne, każdy z naszych domów jest wykonany na GRZEWCZEJ PŁYCIE FUNDAMENTOWEJ z izolacją 20cm XPS pod płytą. Przeważnie jest to rozwiązanie PREMIUM, jednak my robimy to w standardzie, aby rachunki były jeszcze niższe.
Optymalny GW to nie tylko nazwa — to idea budowania przemyślanych domów optymalnych, w których każdy etap, każdy detal jest tak przemyślany aby pogodzić ze sobą cenę, jakość i ekonomiczność użytkowania. Po to właśnie powstało GW HOUSES.
Zero odpadów – dom tani w budowie
Projekt optymalny GW został wykonany od podstaw. Przyjęliśmy w nim takie wymiary, aby wyeliminować odpady materiałów lub ograniczyć je do minimum. Etapy budowy są tak przemyślane aby budowa przebiegła szybko i nie generowała dodatkowych kosztów, a grubości izolacji i sposób ogrzewania dobraliśmy tak aby znaleźć optymalny punkt – dom jest ciepły i tani w utrzymaniu, ale nadal tani w budowie – jednym słowem przedstawiamy Państwu dom optymalny.
Elastyczny design
Dom jest tak zaprojektowany aby wyglądał fantastycznie zarówno w klasycznym wydaniu z czerwonym dachem i zdobieniami z cegły, jak i w nowoczesnym z antracytową płaską dachówką, antracytową stolarką zewnętrzną i jasnoszarą cegiełką. W każdym z tych wariantów dom wygląda ponadczasowo i zdecydowanie wyróżnia się z tłumu.
Dodatkowe pomieszczenie do adaptacji
Mimo, że jest to dom gotowy, założyliśmy w nim jedno uniwersalne pomieszczenie do adaptacji. Bez problemu może być ono dodatkową toaletą, pralnią lub garderobą. A może masz na to jeszcze inny pomysł? – Nie ma sprawy, wykorzystaj je jak chcesz. Dodatkowo istnieje również możliwość rezygnacji ze spiżarni i tym samym powiększenie kuchni, a na poddaszu masz możliwość zaadoptowania 15m2 na powierzchnię strychową. Wybór należy do Ciebie.
Dom na każdą działkę
Wymiary bryły oraz przyjęte kąty dachu są tak ustandaryzowane, że umożliwiają budowę domu praktycznie na każdej działce. W przypadku gdyby jednak wystąpiła konieczność zmiany kąta dachu, jest to bez problemu do wykonania podczas adaptacji przez naszą firmę.
Prosty rzut na planie prostokąta, czterospadowy dach oraz duże przeszklenia tworzą wspaniałą ponadczasową, minimalistyczną estetykę. Budynek świetnie wpisuje się w aktualne trendy architektoniczne i idealnie komponuje się zarówno z działką miejską, jak i podmiejską.
Uniwersalny projekt
To propozycja dla osób szukających domu o wysokim standardzie w przystępnej cenie, który powstaje szybko i bez problemów. Projekt będzie idealny dla rodzin z dziećmi, inwestorów budujących dom pod wynajem, jak również par szukających funkcjonalnego domu parterowego z gabinetem do pracy lub potencjałem na zwiększenie członków rodziny.
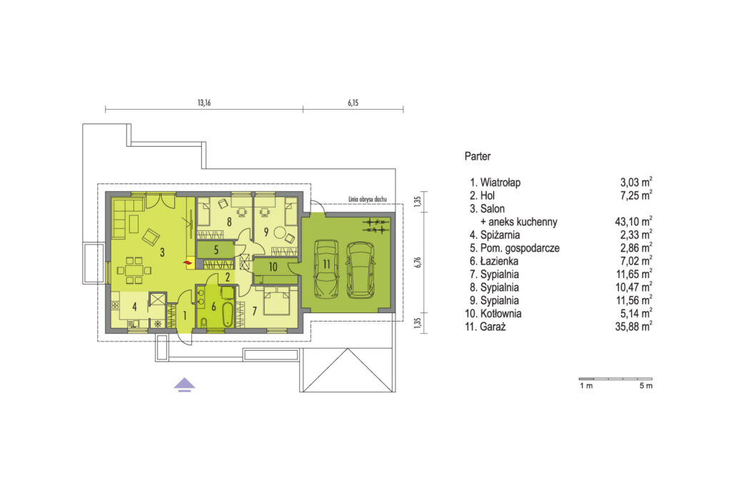
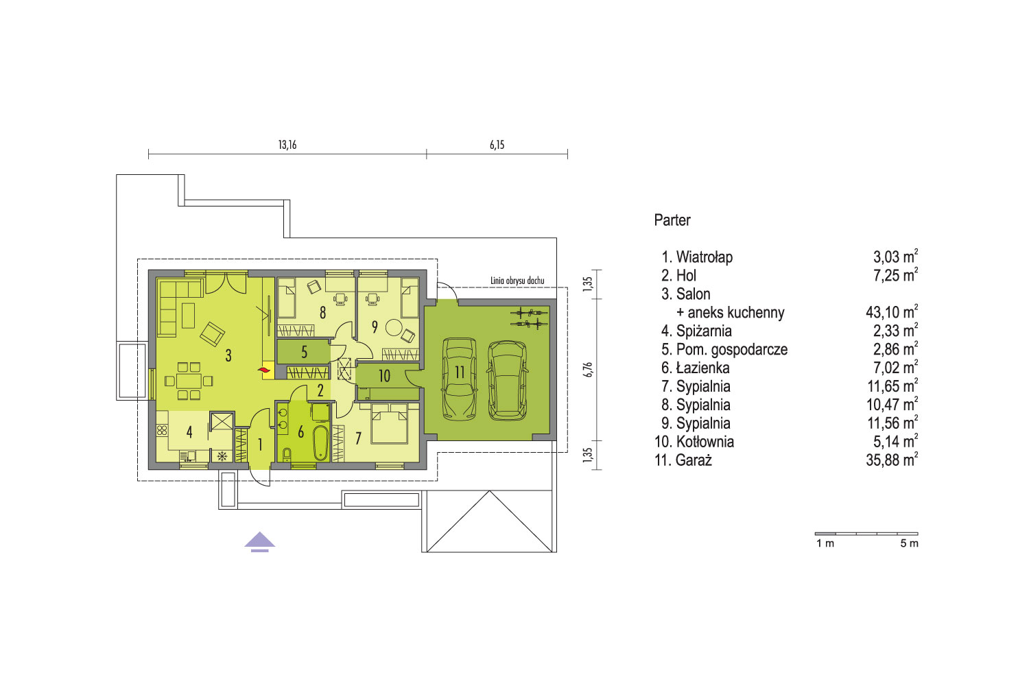
Układ funkcjonalny
Powierzchnia budynku wynosi około 104,4 m², co czyni go idealnym wyborem dla 3–4 osobowej rodziny.
Projekt zakłada:
- 3 sypialnie (w tym możliwość zaaranżowania jednej jako gabinet),
- 1 dużą przestronną łazienkę z miejscem na prysznic i wannę, dwie umywalki oraz WC z bidetką,
- pomieszczenie do adaptacji – np. dodatkowa toaleta lub garderoba,
- salon z aneksem kuchennym i jadalnią, otwarty na taras dzięki dużym przeszkleniom,
- spiżarnię,
- wiatrołap pełniący funkcję buforową,
- hol z miejscem na pojemną szafę,
- pomieszczenie techniczne (kotłownia) z dodatkowym miejscem na pralkę i suszarkę,
- możliwość wykonania strychu jako dodatkowej przestrzeni magazynowej ok. 15m2,
- garaż dwustanowiskowy.
Pomieszczenia zostały zaprojektowane z myślą o ergonomii, komforcie i elastyczności aranżacyjnej.
Technologia i materiały
- wysoką dokładność wykonania i eliminację mostków termicznych,
- świetną izolację akustyczną i termiczną,
- odporność na grzyby, wilgoć i pleśń – idealny wybór dla alergików,
- ogniotrwałość i dużą szczelność przegród.
Dzięki prefabrykowanym ścianom i stropom dom może być postawiony w kilka dni od wykonania fundamentów, a cały proces budowy do stanu deweloperskiego zamyka się w zaledwie kilku miesiącach.
Parametry techniczne
- Powierzchnia: ok. 104,4 m² + 35,59 m2 garażu
- Liczba pokoi: 5 (3 sypialnie + salon z kuchnią + pom. do adaptacji)
- Liczba łazienek: 1
- Typ budynku: parterowy
- Technologia: keramzytobeton, prefabrykacja
- Czas realizacji: od 3 do 6 miesięcy
- Rodzaj dachu: czterospadowy
- Kąt nachylenia dachu: ok. 30°






