GW- Rodzinny G2- to specjalnie przygotowany projekt dla rodzin wielodzietnych lub osób poszukujących domu z dużą ilością pomieszczeń np. pod wynajem. z dodatkowym dużym garażem dwustanowiskowym.
Nie raz zdarzało nam się realizować budowę dla rodziny wielodzietnej – wiemy jakie to wyzwanie zapewnić komfortowe warunki mieszkania przy zachowaniu atrakcyjnej ceny realizacji i niskich kosztach eksploatacji. Zdajemy sobie sprawę z wysokich kosztów utrzymania wielodzietnej rodziny, dlatego postawiliśmy sobie za cel stworzenie rodzinnego komfortowego domu, taniego w realizacji i utrzymaniu. Naszym celem było zredukowanie kosztów budowy do minimum, ale w taki sposób, aby zachować przy tym bardzo dobre właściwości termiczne i bezawaryjność domu. Tak powstał GW Rodzinny – idealny dom dla rodzin wielodzietnych. Dom w cenie mieszkania. W tym wariancie dom posiada dodatkowy pojemny garaż dwustanowiskowy, garaż jest wykonany w bryle budynku – tak abyś nawet zimą lub w deszczowy dzień mógł swobodnie z niego korzystać.
Dom który rośnie razem z dziećmi
GW-Rodzinny to nie tylko nazwa, to przemyślana przestrzeń idealna dla dużej rodziny. Poddasze zostało zaprojektowane w taki sposób, by było łatwe do adaptacji i zmian w miarę zmieniających się potrzeb Waszych dzieci. Gdy dzieci są małe, poddasze tworzy jedną dużą otwartą przestrzeń do zabawy dla Waszych pociech, ale jest tak przygotowane, abyście w każdej chwili bez problemu mogli je przekształcić w dwie dodatkowe sypialnie z łazienką i dodatkowymi pojemnymi szafami przy skosach. Finalnie otrzymujesz dom, który ma aż 5 sypialni, dwie łazienki, toaletę lub garderobę (opcjonalna), salon z aneksem kuchennym i spiżarnią oraz kotłownię i pojemne szafy na poddaszu. Aż ciężko uwierzyć, że to wszystko za tak rozsądną cenę – prawda? Jest to projekt, z którego jesteśmy naprawdę dumni.
A może wpadniecie na inny pomysł podziału poddasza – nie ma problemu, jest tak przygotowane, że w elastyczny sposób umożliwi Wam taki podział, jaki tylko sobie wymarzycie. Jednym słowem na poddaszu dostajecie ponad 41,5 m2 posadzki do dowolnej adaptacji.
Niski koszt ogrzewania
Zwarta bryła, przemyślana konstrukcja, przeliczone grubości izolacji oraz lokalizacja okien powodują, że dom jest bardzo ekonomiczny w utrzymaniu, a rachunki za energię zaskoczą pozytywnie każdego z naszych klientów! Jako że niskie opłaty za rachunki są dla nas bardzo ważne, każdy z naszych domów jest wykonany na grzewczej płycie fundamentowej z izolacją 20 cm XPS pod płytą. Przeważnie jest to rozwiązanie premium, jednak my robimy to w standardzie, aby rachunki były jeszcze niższe.
Zero odpadów – dom tani w budowie
Projekt GW Rodzinny został wykonany na podstawie naszego flagowego produktu GW Optymalny. Przyjęliśmy w nim takie wymiary, aby wyeliminować odpady materiałów lub ograniczyć je do minimum. Etapy budowy są tak przemyślane, aby budowa przebiegła szybko i nie generowała dodatkowych kosztów, a grubości izolacji i sposób ogrzewania dobraliśmy tak, aby znaleźć optymalny punkt – dom jest ciepły i tani w utrzymaniu, ale nadal tani w budowie.
Elastyczny design
Dom jest tak zaprojektowany, aby wyglądał fantastycznie zarówno w klasycznym wydaniu z czerwonym dachem i zdobieniami z cegły, jak i w nowoczesnym z antracytową płaską dachówką, antracytową stolarką zewnętrzną i jasnoszarą cegiełką. W każdym z tych wariantów dom wygląda ponadczasowo i zdecydowanie wyróżnia się z tłumu.
Dom na każdą działkę
Wymiary bryły oraz przyjęte kąty dachu są tak ustandaryzowane, że umożliwiają budowę domu praktycznie na każdej działce. W przypadku gdyby jednak wystąpiła konieczność zmiany kąta dachu, jest to bez problemu do wykonania podczas adaptacji przez naszą firmę.
Prosty rzut na planie prostokąta, dwuspadowy dach oraz duże przeszklenia tworzą wspaniałą ponadczasową, minimalistyczną estetykę. Budynek świetnie wpisuje się w aktualne trendy architektoniczne i idealnie komponuje się zarówno z działką miejską, jak i podmiejską.
Układ funkcjonalny
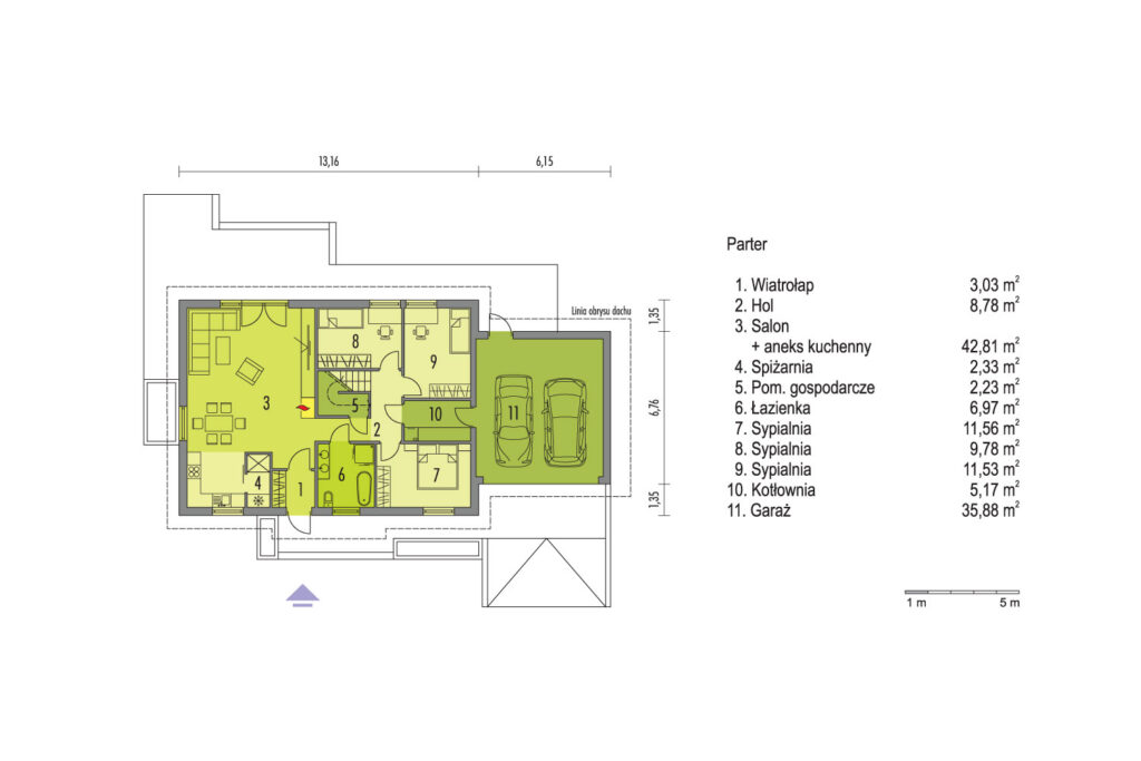
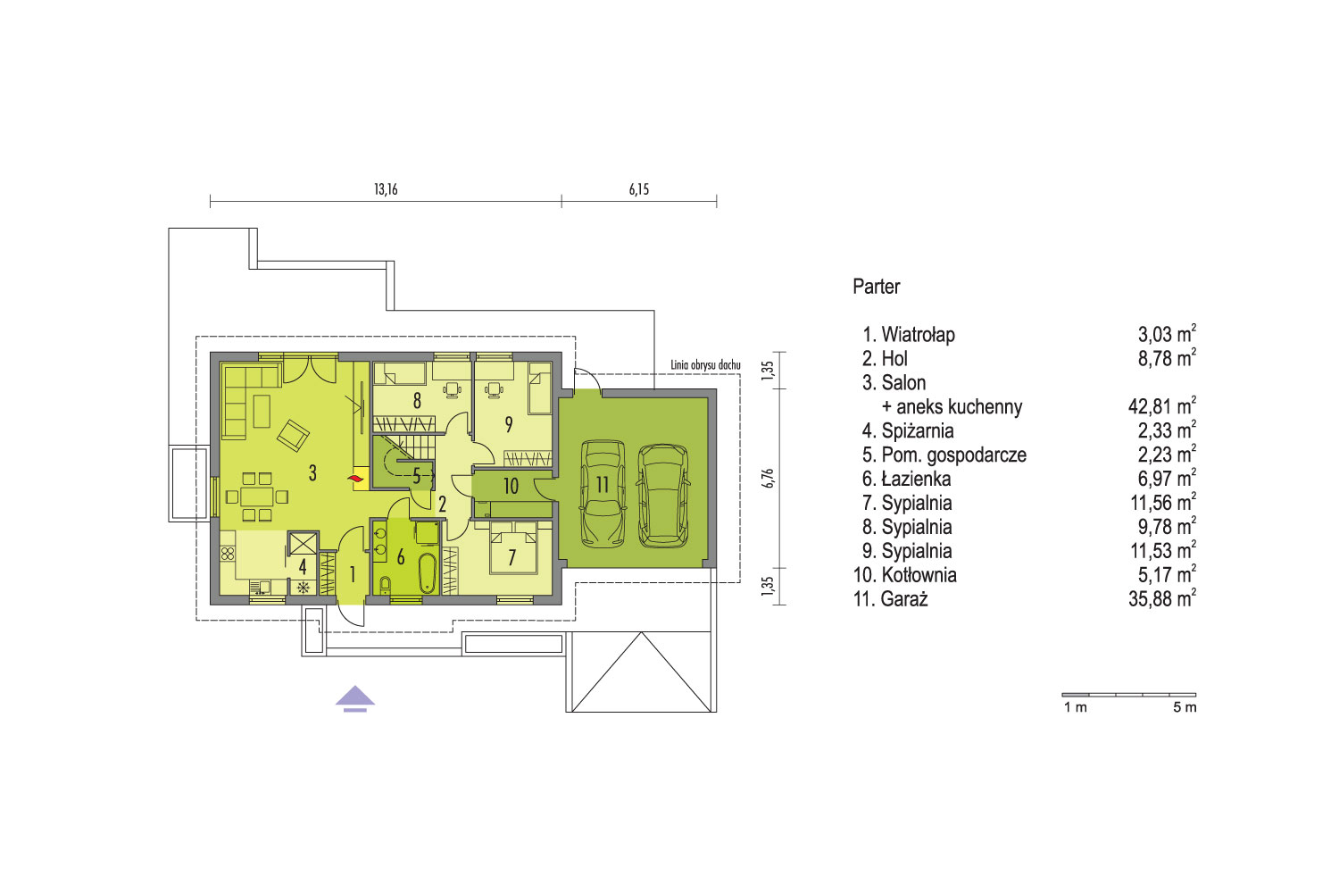
Projekt zakłada:
- 5 sypialni
- 2 łazienki – mniejsza na poddaszu i duża przestronna z miejscem na prysznic i wannę, dwie umywalki i WC z bidetką na parterze
- pomieszczenie do adaptacji – np. dodatkowa toaleta lub garderoba (pod schodami)
- salon z aneksem kuchennym i jadalnią, otwarty na taras dzięki dużym przeszkleniom
- spiżarnia
- wiatrołap pełniący funkcję buforową
- hol z miejscem na pojemną szafę
- pomieszczenie techniczne (kotłownia) z dodatkowym miejscem na pralkę i suszarkę
- garaż dwustanowiskowy
Pomieszczenia zostały zaprojektowane z myślą o ergonomii, komforcie i elastyczności aranżacyjnej.
Technologia i materiały
- wysoką dokładność wykonania i eliminację mostków termicznych
- świetną izolację akustyczną i termiczną
- odporność na grzyby, wilgoć i pleśń – idealny wybór dla alergików
- ogniotrwałość i dużą szczelność przegród
Dzięki prefabrykowanym ścianom i stropom dom może być postawiony w kilka dni od wykonania fundamentów, a cały proces budowy do stanu deweloperskiego zamyka się w zaledwie kilku miesiącach.
Parametry techniczne
- Powierzchnia: ok. 172 m² (ponad 181,6 m2 licząc po posadzce)
- Liczba pokoi: 6 (5 sypialni + salon z kuchnią + pom. do adaptacji)
- Liczba łazienek: 2 + opcjonalna toaleta na parterze
- Typ budynku: dom parterowy z poddaszem użytkowym
- Technologia: keramzytobeton, prefabrykacja
- Czas realizacji: od 3 do 6 miesięcy
- Rodzaj dachu: dwuspadowy
- Kąt nachylenia dachu: ok. 31,5°












